Bekijk onze funda logo reviews

Omschrijving

Vrijstaand rijksmonument (83 m²) op historische grond – wonen in de oude schootslinie van Weesp

Aan de Utrechtseweg, op een van de meest bijzondere plekken van Weesp, staat dit vrijstaande rijksmonument (uit ca. 1885). Een sfeervol huis met karakter en geschiedenis. Naast de rijke historie is het ook een prachtige plek om te wonen, direct grenzend aan de binnenstad en midden in de mooiste natuur van Weesp.

Dit vrijstaande huis is geen standaard huis. Dit huis verdient een koper die zich wil inzetten om dit rijksmonument op te knappen en te behouden voor de toekomst. Na renovatie en modernisatie, zal je op deze plek rustig wonen en met veel ruimte rondom het huis, wat een heerlijk gevoel van vrijheid geeft.

Historische ligging
De woning ligt in de oude schootslinie van Weesp – het verdedigingsgebied dat eeuwenlang diende ter bescherming van de stad. Hier woon je letterlijk op historische grond, De monumentale status garandeert het behoud van dit unieke karakter, waarbij de toekomstige koper het haar of zijn thuis kan maken.

De ligging is heerlijk vrij: vrijstaand, uitzicht op de dijk en vanaf de dijk op de nabijgelegen Vecht.”

Ideale verbindingen.
Op korte afstand vind je het charmante oude centrum van Weesp met zijn terrassen, winkels en horeca. Fiets in 5 minuten naar het NS-station, vanwaar je binnen een kwartier in Amsterdam centrum bent. Ook de uitvalswegen A1, A9 en A10 naar Amsterdam, Schiphol en Amersfoort zijn snel en makkelijk te bereiken.

Kortom, een vrijstaand huis vol historie op een toplocatie. Hier wil je wonen!

Indeling

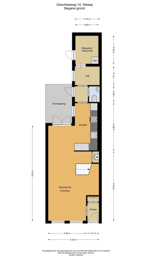
Begane grond
Entree aan de voorzijde met kleine hal. Vanuit de hal toegang tot de lichte woonkamer met uitzicht op de groene omgeving en de dijk aan de voorzijde. De woonkamer is ruim, met een hoog plafond, aan de achterzijde heeft de woonkamer openslaande deuren naar de tuin. De keuken is L-vormig en heeft een lichte kleurstelling, via de keuken kom je in een kleine hal met toegang tot de tuin en het toilet met fontein, aansluitend is er een extra hal en een bijkeuken, die eveneens toegang geeft tot de tuin.

Eerste verdieping
Vanuit de woonkamer de opgang naar de eerste verdieping. Overloop met toegang tot de twee slaapkamers en een kleine badkamer. De slaapkamer aan de voorzijde biedt vrij uitzicht over de Vecht en de tweede slaapkamer aan de achterzijde kijkt uit over de diepe tuin.

Buitenruimte en bijgebouwen:
Rondom het huis is er veel tuin aanwezig, er is een voortuin van een mooi formaat en via de zijtuin bereik je, middels een poort, de zeer zonnige diepe achtertuin op het zuiden.

De achtertuin is geheel naar wens aan te leggen. Er is een houten berging (7,1 m²), ideaal voor fietsen, tuingereedschap en extra opslag.

Achterin de tuin staat een stenen garage (20 m²) die eventueel erbij gekocht kan worden. Deze garage is zowel vanuit de tuin als de openbare weg bereikbaar.

In het kort:
o Houten rijksmonument (laat 19e-eeuws)
o Woning dient gerenoveerd en gemoderniseerd te worden
o Bouwkundig rapport aanwezig
o Ruim perceel eigen grond: ca. 260 m² (deel perceel dit i.v.m. de mogelijke separate verkoop van de garage)
o Woonoppervlakte: 83 m²
o Meterkast: 5 groepen en 1 aardlekschakelaar
o Twee slaapkamers
o Vrijstaande berging
o Separaat te koop: vrijstaande stenen garage aan de achterzijde van het perceel

Kenmerken

  • Woonoppervlakte 83 m2
  • Perceeloppervlakte 289 m2
  • Slaapkamers 2 kamers
Zoekopdracht nieuw aanbod

Als eerste op de hoogte zijn van ons aanbod? Schrijf je nu in

Vragen?

Kom in contact

Heb je vragen over ons aanbod of onze diensten? Neem dan telefonisch of per e-mail contact op met ons team. Of vul het contactformulier in, en dan nemen wij binnen 24 uur contact met jou op.

Op werkdagen geopend van 9.00 - 17.30

Zaterdag van 10.00 - 13.30

En natuurlijk op afspraak buiten kantoortijden

"*" geeft vereiste velden aan

Dit veld is bedoeld voor validatiedoeleinden en moet niet worden gewijzigd.