Bekijk onze funda logo reviews

Omschrijving

• Een ruim huis met waanzinnig mooi uitzicht over water en plantsoen
• Een huis met een heerlijk diepe tuin op het zuiden
• Een huis met riante woonkeuken
• Een huis met een parkeerplaats op eigen terrein
• Een huis met meerdere mogelijkheden, zoals dubbele bewoning

Deze riante, geschakelde twee-onder-een-kap woning is hét huis waar wonen en eventueel werken of dubbele bewoning mogelijk is.

De moderne twee-onder-een-kap woning heeft een woonoppervlakte van maar liefst 178 m² en heeft momenteel twee woonkamers, twee keukens, drie slaapkamers en twee badkamers verdeeld over vier woonlagen. Het biedt daardoor tal van mogelijkheden om te wonen. Denk aan een (groot) gezin, praktijk of atelier aan huis of een inwonende ouder/au pair. Andere indelingen en uitbreiding van meer slaapkamer behoren zeker tot de mogelijkheden.

Het huis is gelegen op een ruim perceel van 270 m² en kijkt aan de achterzijde uit over het water Smal Weesp. De woonkamer/woonkeuken op de begane grond geeft middels een grote schuifpui toegang tot de heerlijke achtertuin Deze is gelegen op het zuiden en is maar liefst circa 17 meter diep. De tweede woonkamer is gelegen op de eerste verdieping en beschikt over een groot balkon van 18 m² en heeft dus dat waanzinnige uitzicht.

De woning is gebouwd in 1966 en is in 2015 nagenoeg geheel gerenoveerd en geïsoleerd (energielabel C), ook is de woning altijd goed onderhouden.

De ligging van deze woning is ideaal: lopend of fietsend langs het water Smal Weesp, sta je binnen een paar minuten in het centrum van Weesp. Iets vergeten? Dan loop je nog sneller naar winkelcentrum Hogeweij waar zich o.a. 2 supermarkten en een drogist bevinden. Het historische centrum van Weesp biedt overigens diverse speciaalzaken zoals bakkers, een slager, een groentespecialist, leuke winkeltjes en een goede ijssalon. Verder zijn er verschillende restaurants, terrassen en cafés.

Voor forenzen is Weesp ook een ideale locatie, omdat het een uitstekende bereikbaarheid biedt naar Amsterdam en andere steden via de A1 en A9. Het treinstation van Weesp ligt op 6 minuten fietsafstand van de woning en biedt frequente treinverbindingen naar o.a. Amsterdam Centraal, Schiphol en Utrecht.

Maak snel een afspraak, we laten deze bijzondere woning op een waanzinnige plek graag aan je zien!

Indeling

Begane grond:
Overdekt entree, eerste hal met toegang naar de inpandige berging (met wasmachine/droger aansluiting, CV-ketel en wasbak) en de opgang naar de verdiepingen. Tweede hal voorzien van een modern toilet met fontein en de meterkast. Vanuit de hal de toegang naar de lichte en tuingerichte woonkeuken voorzien van grote schuifpui. De moderne keuken beschikt over de volgende inbouwapparatuur: vaatwasser, koel-/vriescombinatie, oven, inductiekookplaat en afzuigkap. De tuingerichte woonkeuken heeft een doorloop naar de werk-/studeerkamer. Ook bevindt zich op de begane grond een trap naar de eerste verdieping.

Eerste verdieping:
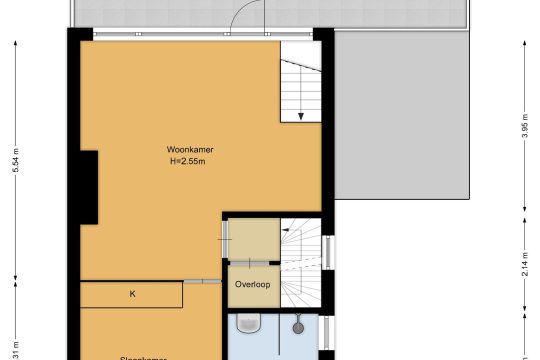
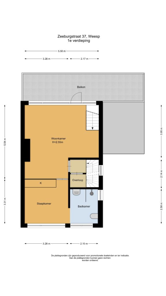
Via de trap in de hal of vanuit de woonkeuken kom je respectievelijk uit op de overloop en de tweede grote woon-/eetkamer. Deze licht woon-/eetkamer grenst aan het zonnige balkon van 18 m² gelegen op het zuiden. Vanuit de woonkamer en het balkon is het een prachtig uitzicht op Smal Weesp. Aan de achterzijde bevindt zich de eerste slaapkamer met vaste kastenwand en de moderne en suite badkamer voorzien van inloopdouche, tweede toilet en wastafel.

Tweede verdieping:
Via de eventueel af te sluiten deur op de overloop van de eerste verdieping de opgang naar de tweede verdieping, alwaar een grote overloop. Aan de voorzijde bevindt zich wederom een mooie en vooral licht woon-/eetkamer, aan de achterzijde een keuken met inductiekookplaat, afzuigkap, vaatwasser en koelkast. Eveneens aan de achterzijde een slaapkamer. Vanaf de overloop is de tweede badkamer toegankelijk met douchecabine, derde toilet en wastafel.

Derde verdieping:
Vanaf de overloop de toegang naar de grote zolderruimte met drie dakramen. Deze ruimte is uitermate geschikt om eventueel nog een dakkapel te plaatsen en mogelijk een extra goede slaapkamer van te maken. De tweede cv-ketel en de wasmachine bevindt zich ook op deze verdieping, alsmede veel bergruimte achter de knieschotten.

Inpandige berging (voormalige garage) en buitenruimtes:
Aan de voorzijde van de woning bevinden zich op eigen terrein 2 eigen parkeerplaatsen. De inpandige berging van 11 m² is bereikbaar vanaf buiten middels de grote garagedeur en een loopdeur, maar ook vanuit de hal in het huis. De berging is voorzien van water en elektra, ook bevindt zich de wasmachineopstelling en de eerste CV ketel hier.

De heerlijke achtertuin (zuid) is circa 17 meter diep en heeft een heerlijk groot terras. Aan de achterzijde bevindt zich een deur die uitkomt in het plantsoen.

Op de eerste verdieping van het woonhuis, grenst aan de tweede woonkamer het brede balkon van 18 m², welke ook gelegen is op het zuiden. Ook hier is heerlijk genieten van de ruime tuin en het weidse uitzicht.

In het kort:
o Ruime twee-onder-een-kap woning met woonoppervlakte van 178 m²
o Ruim perceel eigen grond van 270 m²
o Diepe tuin én balkon, beide gelegen op het zuiden
o De woning is geschikt voor meerdere doeleinden, momenteel ingedeeld voor dubbele bewoning
o Overloop eerste verdieping is af te sluiten middels inpandige ‘voordeur’ voor de bovengelegen woning.
o Inpandige berging en 2 parkeerplekken op eigen terrein
o Uitgebreide (dubbele) meterkast (uit 2015) met in totaal 18 groepen, 5 aardlekschakelaars en 2 hoofdschakelaars
o Vloerverwarming begane grond en in de badkamer op de eerste verdieping
o 2 x CV-ketels (begane grond en derde verdieping) in eigendom
o Volledige isolatie: vloer-, dak- en muurisolatie en geheel dubbel (HR++) glas
o Energielabel C
o Oplevering kan snel

Kenmerken

  • Woonoppervlakte 178 m2
  • Perceeloppervlakte 270 m2
  • Slaapkamers 2 kamers
  • Bouwjaar 1966
Zoekopdracht nieuw aanbod

Als eerste op de hoogte zijn van ons aanbod? Schrijf je nu in

Vragen?

Kom in contact

Heb je vragen over ons aanbod of onze diensten? Neem dan telefonisch of per e-mail contact op met ons team. Of vul het contactformulier in, en dan nemen wij binnen 24 uur contact met jou op.

Op werkdagen geopend van 9.00 - 17.30

Zaterdag van 10.00 - 13.30

En natuurlijk op afspraak buiten kantoortijden

"*" geeft vereiste velden aan

Dit veld is bedoeld voor validatiedoeleinden en moet niet worden gewijzigd.