Boternesserstraat 26b
€ 685.000 k.k.Omschrijving
Instapklare twee-onder-een kapwoning met vier slaapkamers, energielabel A en een zonnige tuin.
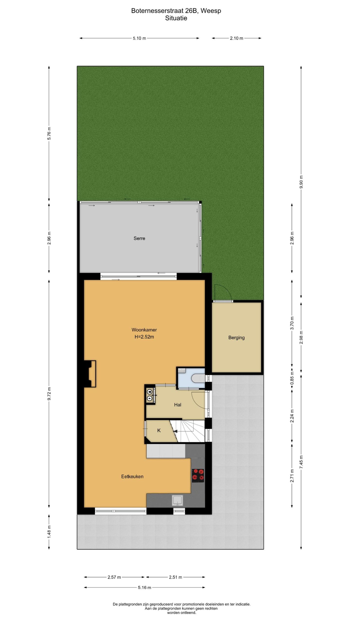
Welkom aan de Boternesserstraat 26B – een woning die vanaf het eerste moment voelt als thuis. Met een woonoppervlakte van 118 m², een ruime berging en een verzorgde tuin met serre, is dit dé ideale gezinswoning.
De woonkamer staat in open verbinding met de keuken waardoor er een royale en lichte leefruimte ontstaat. De serre voegt hier een bijzonder fijne dimensie aan toe: een plek waar binnen en buiten in elkaar overlopen, met zicht op de ruime tuin. De open haard vormt een sfeervol middelpunt in de woonkamer en draagt bij aan het warme, huiselijke gevoel.
De keuken is in 2021 vernieuwd en voorzien van hoogwaardige inbouwapparatuur, waaronder een afwasmachine, Bora inductiekookplaat met geïntegreerd afzuigsysteem, een oven, combi-oven en een koel-/vriescombinatie. Natuurlijk mag de Quooker niet ontbreken. Naast de keuken bevindt zich een grote trapkast, ideaal voor voorraad of schoonmaakspullen.
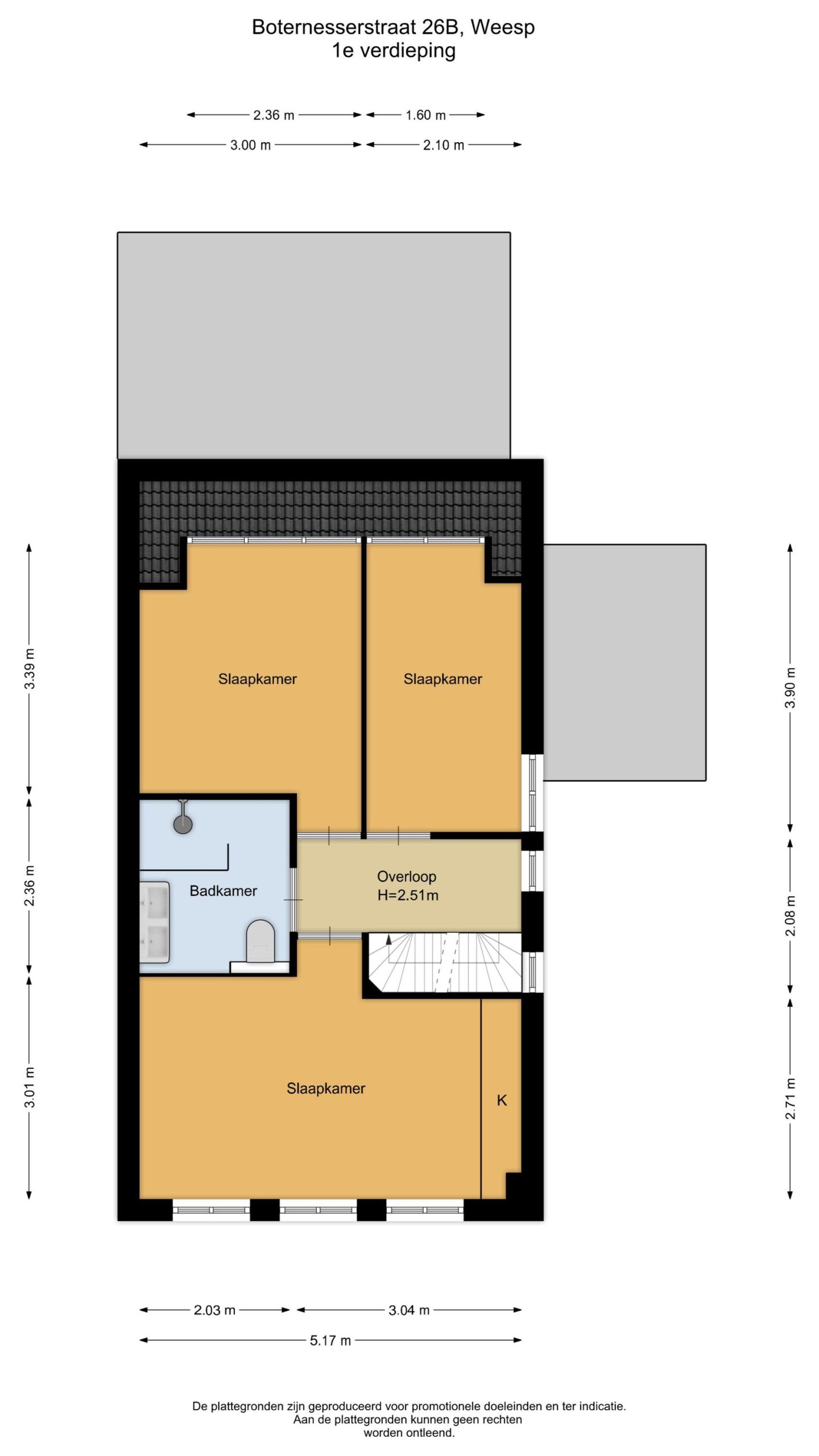
Op de eerste verdieping vind je drie slaapkamers en een nette badkamer met inloopdouche, modern wastafelmeubel, toilet en elektrische vloerverwarming. De tweede verdieping is nu in gebruik als kantoor maar kan uitstekend als slaapkamer functioneren. Tevens bevindt zich hier ook de Remeha Cv-installatie uit 2024 en mechanische ventilatie.
Bovendien is het huis met energielabel A zeer energiezuinig. Zo zijn het dak, de gevel en de vloer geïsoleerd, liggen er 9 zonnepanelen op het dak en is het huis grotendeels voorzien van HR++ beglazing.
Buitenleven in eigen tuin: de verzorgde achtertuin is een ware oase van rust, met sierlijke beplanting en onderhoudsvriendelijke tegels. Extra praktisch is de achterom, waardoor de tuin ook vanaf de achterzijde toegankelijk is.
Deze woning is met liefde onderhouden en biedt alles wat je zoekt: ruimte, comfort, energiezuinigheid én een fijne tuin. Ben je op zoek naar een licht, praktisch en warm thuis? Dan is Boternesserstraat 26B zeker een bezichtiging waard.
Indeling:
Entree: bij binnenkomst in de entree vind je het toilet met fontein en de meterkast, trap naar boven en toegang naar de woonkamer/serre met schuifpui naar de achtertuin op het zuidwesten. De woonkeuken is voorzien van alle benodigde inbouwapparatuur en een trapkast.
Eerste verdieping: overloop, drie in grootte variërende slaapkamers en een badkamer met inloopdouche, modern wastafelmeubel, toilet en elektrische vloerverwarming.
Tweede verdieping: het trappenhuis naar de tweede verdieping is bijzonder licht door de lange smalle ramen aan de voorzijde. Deze verdieping is ruim en door de grote hoeveelheid ramen lekker licht. In de hoek bevindt zich de CV en aansluiting voor de wasmachine/droger. Er kan eenvoudig een extra slaap/werkkamer worden gecreëerd.
Locatie:
De woning bevindt zich op vijf fietsminuten van het knusse en historische centrum van Weesp met al haar fijne voorzieningen. Er zijn diverse speciaalzaken zoals bakkers, een groentespecialist, een slager en een noten- en kaaswinkel. Daarnaast zijn er diverse restaurants en cafés, winkels, scholen, sportverenigingen, een theater en er is zelfs bierbrouwerij (gevestigd in de voormalige Laurentiuskerk). Winkelcentrum Hogewey ligt letterlijk om de hoek, in 2 minuten loop je naar de supermarkt, Etos en Primera.
In het kort:
o Woonoppervlakte: 118 m²
o Vier slaapkamers
o Energielabel A
o 9 zonnepanelen
o Goed onderhouden achtertuin op het zuidwesten met achterom
o Vloerisolatie met PVC vloer
o Moderne keuken met inbouwapparatuur 2021
o Remeha CV ketel uit 2024
o Waterontharder aanwezig
Kenmerken
- Woonoppervlakte 118 m2
- Perceeloppervlakte 160 m2
- Slaapkamers 4 kamers
- Bouwjaar 1989