Bekijk onze funda logo reviews

Omschrijving

Altijd al gedroomd van wonen in hartje centrum met een heerlijke tuin? Dat kan!

Gelegen in één van de meest populaire straatjes van Weesp vind je deze karakteristieke stadswoning uit 1860, waarbij de historische dubbele voordeur de rijke historie van het pand benadrukt.
Deze woning, met 78 m² woonoppervlakte, heeft twee slaapkamers, een moderne lichte badkamer en een fijne stadstuin met achterom. Hier zit je heerlijk vrij, een ideale plek om te ontspannen met een kop koffie of een goed boek. Behoefte aan meer reuring? Stap de deur uit en binnen enkele minuten zit je op een van de vele gezellige terrassen die Weesp rijk is.

Het huis is met zorg onderhouden, zo is recent het buitenschilderwerk aangepakt en is de woning grotendeels voorzien van dubbel glas.

Perfecte ligging

Gelegen op een rustig plekje in de geliefde Nieuwstraat in het gezellige oude centrum. De winkels en restaurantjes zijn letterlijk om de hoek. Ook het NS-station van Weesp met zeer frequente treinverbindingen binnen de Randstad (o.a. Amsterdam CS op 17 treinminuten, de Zuidas, Schiphol, Hilversum en Almere) ligt op loopafstand.

Kortom, sfeervol en comfortabel wonen op een top locatie in het centrum van Weesp? Bel ons voor een bezichtiging en wellicht is dit jouw nieuwe huis!

Indeling:
Begane grond:
Entree met meterkast en toegang tot de gezellige woonkamer. De keuken bevindt zich aan de achterzijde, waarbij de koelkast, vaatwasser en oven recent zijn vernieuwd. Achter de keuken bevindt zich het toilet en een kast met daarin de aansluiting voor de wasmachine. Hierdoor is de wasmachine netjes weggewerkt. Via de keuken bereik je de fraai aangelegde achtertuin met achterom.

De begane grond is voorzien van een houten vloer.

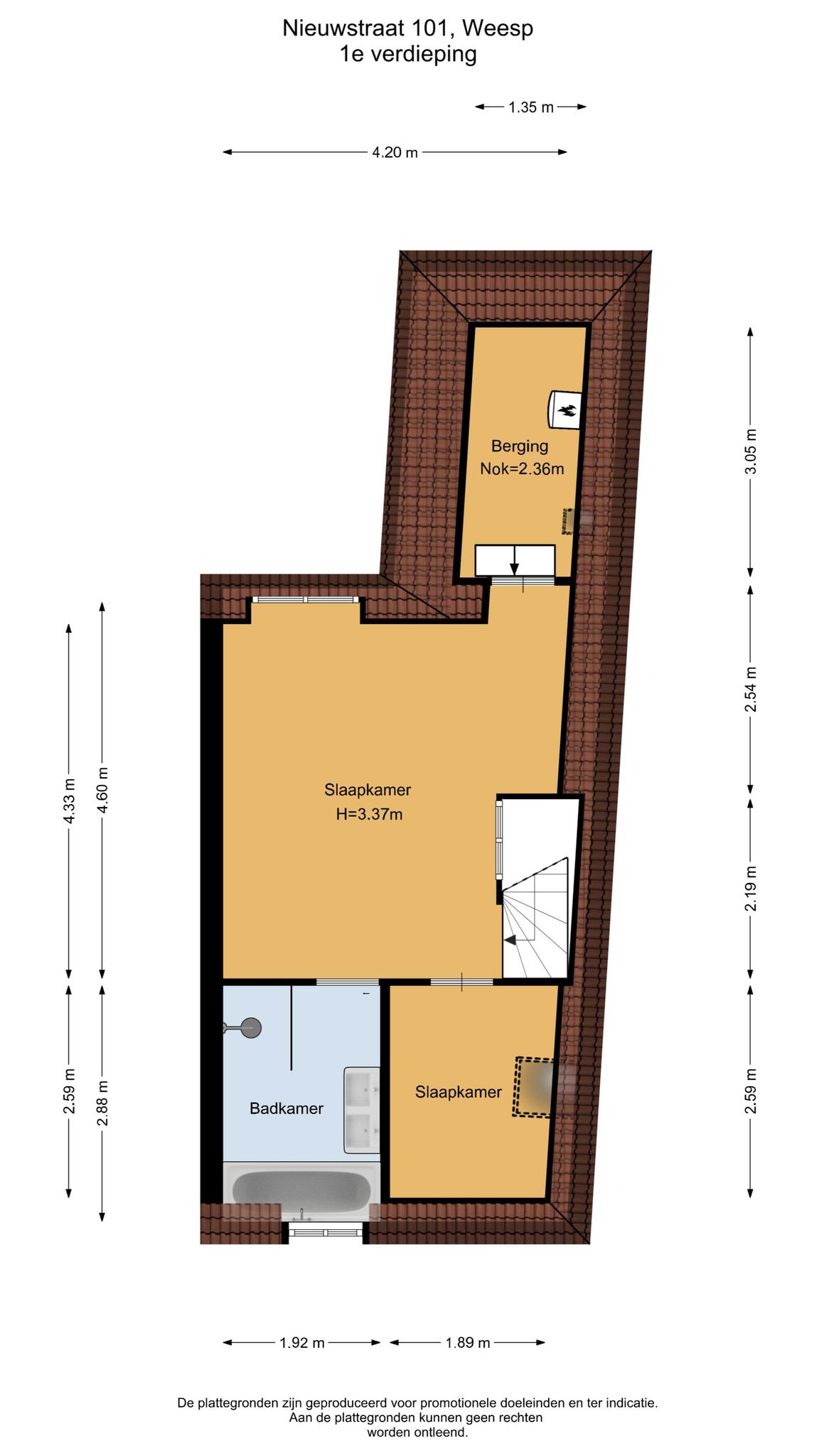
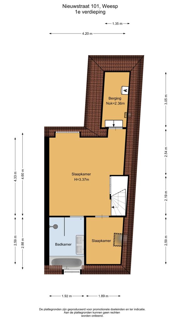
Eerste verdieping:
Ruime slaapkamer met dakkapel en schuifdeur naar de moderne badkamer (eind 2019) eveneens voorzien van een dakkapel en ligbad, wastafelmeubel met dubbele kraan en inloopdouche. Daarnaast vind je een tweede slaapkamer. Aan de achterzijde bevindt zich de technische ruimte met CV (2021) en extra opbergruimte.

Deze verdieping is voorzien van een mooie doorgelegde laminaat vloer.

In het kort:
o Karakteristieke stadswoning in het historisch centrum van Weesp
o Centraal gelegen en toch rustig
o Beschermd stadsgezicht
o Woonoppervlakte: 78 m²
o Perceel: 79 m²
o Bouwjaar: 1860
o Achtertuin met achterom
o Twee slaapkamers
o Energielabel: E
o Dichtbij het NS station met frequente treinverbindingen binnen de Randstad
o Parkeren middels vergunning (€ 50,-/jaar)

Levendig Weesp

Weesp is een pittoresk vestingstadje met veel historie en gelegen aan de rivier “De Vecht”. Naast de bekende supermarkten vind je hier diverse speciaalzaken, leuke cadeauwinkeltjes en een uitstekende ijssalon. Bovendien zijn er verschillende restaurants en cafés, sportverenigingen, een theater en er is zelfs een bierbrouwerij (gevestigd in de voormalige Laurentiuskerk).

Kenmerken

  • Woonoppervlakte 78 m2
  • Perceeloppervlakte 79 m2
  • Slaapkamers 2 kamers
  • Bouwjaar 1860
Zoekopdracht nieuw aanbod

Als eerste op de hoogte zijn van ons aanbod? Schrijf je nu in

Vragen?

Kom in contact

Heb je vragen over ons aanbod of onze diensten? Neem dan telefonisch of per e-mail contact op met ons team. Of vul het contactformulier in, en dan nemen wij binnen 24 uur contact met jou op.

Op werkdagen geopend van 9.00 - 17.30

Zaterdag van 10.00 - 13.30

En natuurlijk op afspraak buiten kantoortijden

"*" geeft vereiste velden aan

Dit veld is bedoeld voor validatiedoeleinden en moet niet worden gewijzigd.