Gouwparklaan 80
€ 900.000 k.k.Omschrijving
Op zoek naar een nieuwbouwwoning op een toplocatie in Weespersluis? Zoek niet verder!
Deze prachtige uitgebouwde nieuwbouwwoning van 138 m² is gelegen aan de Gouwparklaan in Weespersluis. Het Gouwpark en het strandje zijn letterlijk om de hoek! Er zijn vier slaapkamers (mogelijk 5), een moderne badkamer en een luxe Siematic keuken. De grote ramen aan de voorkant en de openslaande deuren aan de achterkant zorgen ervoor dat het huis heerlijk licht is. Uiteraard zijn er openslaande deuren naar de zonnige tuin. De muren zijn netjes gestuukt en geschilderd. Er is gekozen voor veel extra stopcontacten en data-aansluitingen in elke kamer. Deze woning in Weespersluis is helemaal nieuw; het is net opgeleverd (november 2025)!
Bovendien is deze woning, met energielabel A++++, zeer energiezuinig. Het huis is volledig voorzien van vloerverwarming en triple glas. Uiteraard is er een bodemwarmtepomp en er zijn maar liefst 17 zonnepanelen. Bijzonder is dat deze woning een eigen batterij heeft, waardoor je opgewekte energie wordt opgeslagen.
De tuin is nog niet aangelegd, hier kun je heerlijk je eigen plekje creëren. Via het achterom bereik je het mandelig terrein. Hier kun je je auto parkeren op je eigen parkeerplaats.
Kortom; zoek je een lichte nieuwbouwwoning in Weespersluis met een snelle oplevering? Bel ons en wellicht ben jij de nieuwe bewoner van Gouwparklaan 80!
De ligging in Weespersluis
De ligging is perfect; in een mooi stukje van Vechtrijk in Weespersluis. Dat betekent dat de winkeltjes, het water en het Gouwpark dichtbij zijn, net als de twee basisscholen. Weespersluis is nog volop in ontwikkeling; zo wordt er hard gewerkt aan de nieuwe sluis, waardoor er een verbinding ontstaat met de rivier de Vecht. Je kunt straks eenvoudig via de Vecht per boot de Amsterdamse grachten bereiken.
Ook het NS station en het oude centrum van Weesp zijn in de buurt. Op 5 minuten fietsafstand vind je diverse speciaalzaken, verschillende restaurants en cafés, sportverenigingen, een theater en een bierbrouwerij (gevestigd in de voormalige Laurentiuskerk). Het station van Weesp heeft treinverbindingen naar onder andere Amsterdam en Schiphol. In 17 minuten sta je op Amsterdam CS en in 23 minuten reis je naar Schiphol. Verder zijn de uitvalswegen (A1, A2, A9 en A10) snel en makkelijk te bereiken.
Indeling:
Begane grond: Entree, hal met meterkast, modern toilet met fonteintje en trap naar boven. Ruime woonkamer met trapkast en openslaande deuren naar de tuin (noordwest) met achterom en berging. Op het mandelig terrein is er een eigen parkeerplaats met carport voorzien van zonnepanelen. Aan de voorzijde bevindt zich de luxe open keuken met de nodige Siemens inbouwapparatuur, waaronder een inductiekoopplaat met geïntegreerde afzuiging, vaatwasser, stoomoven en combi-magnetron. Uiteraard mag de Quooker niet ontbreken.
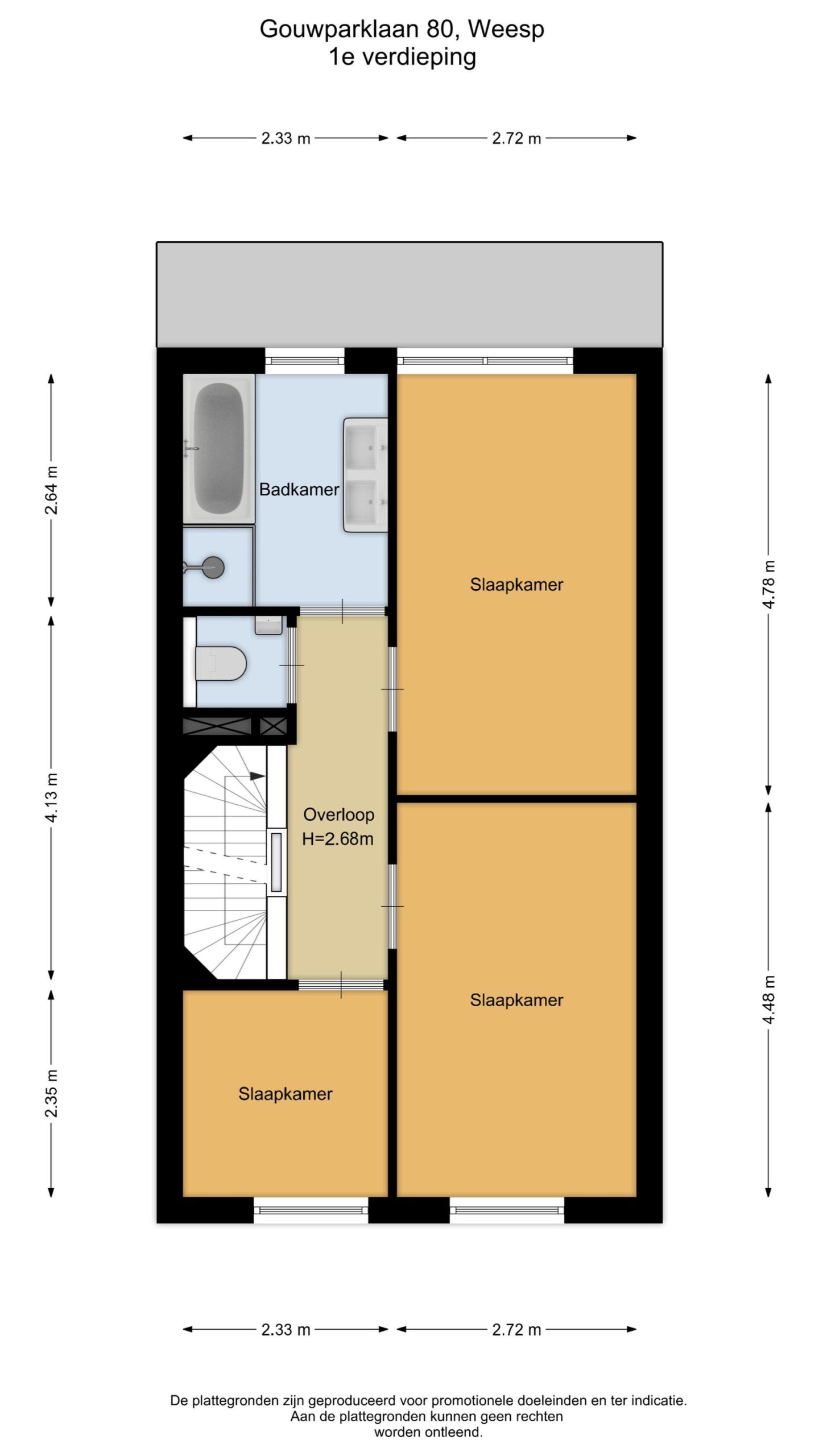
Eerste verdieping: Overloop met drie in grootte variërende lichte slaapkamers. De luxe badkamer met daglicht is voorzien van een ligbad, inloopdouche, wastafelmeubel met dubbele kraan en spiegel met verlichting. Er is een separaat toilet.
Tweede verdieping: Overloop met technische ruimte waarin zich de warmtepomp, boiler, omvormer van de zonnepanelen, mechanische ventilatie en de aansluiting voor wasmachine en droger zich bevinden. Er is een vierde riante slaapkamer over de gehele lengte van het huis. Deze is voorzien van dakkapel en dakraam. Tevens is een aansluiting voor een wastafel of kitchenette (koud en warm water). Hier kan eenvoudig een extra slaapkamer gerealiseerd worden.
De ruime vliering zorgt voor veel extra bergruimte.
In het kort:
o Woonoppervlakte: 138 m²
o Bouwjaar: 2025
o Perceel: 113 m²
o 17 zonnepanelen
o 4 slaapkamers (mogelijk 5)
o Moderne badkamer
o Luxe keuken (Siematic)
o Muren gestuukt en wit geschilderd
o Volledig voorzien van vloerverwarming
o Gasloos, bodemwarmtepomp
o Energielabel A++++ (o.a. eigen batterij)
o Parkeerplaats op mandelig terrein met voorbereiding laadpaal
o Servicekosten mandelig terrein € 48,50 p.m. (parkeerplaats, incl verzekering zonnepanelen)
o Zonnige tuin op het noordwesten, nog naar eigen smaak in te richten; palen voor de schutting zijn al geslagen
o In de kindvriendelijke wijk Weespersluis, met diverse speelgelegenheden
o Dichtbij het oude centrum van Weesp en het NS-station
o Voordeel overdrachtsbelasting komt ten gunste van verkoper
Kenmerken
- Woonoppervlakte 138 m2
- Perceeloppervlakte 113 m2
- Slaapkamers 3 kamers
- Bouwjaar 2025