Blauwschildershof 53
€ 600.000 k.k.Omschrijving
Wakker worden met het gezang van vogels en eindeloos turen over groene velden – dát is wonen op een plek als deze. Vanuit de woonkeuken en de achtertuin heb je uitzicht over weidse landerijen, waar ganzen, ooievaars en hazen je dagelijks gezelschap houden. Een levend schilderij dat elk seizoen verandert.
En de verrassing? Aan de voorzijde van de woning ligt een tweede tuin, knus en beschut. Of je nu verlangt naar een zonnige ochtendkoffie of juist de verkoeling van de schaduw op een warme dag – hier heb je de luxe van keuze.
En dan de woning: ‘ruimte (130 m²), licht, modern afgewerkt, geen standaard indeling’. Deze woorden passen perfect bij deze verrassende eengezinswoning gelegen in de kindvriendelijke buurt Aetsveld in Weesp.
Dus ben jij op zoek naar een ruim huis met maar liefst 4 goede slaapkamers (ook nog eens op dezelfde verdieping) en een grote, lichte woonkeuken en woonkamer met toegang tot zowel de voor- als de achtertuin? Dit is zo’n plek waar je direct blij van wordt – mis het niet!
De woning is gelegen in de kindvriendelijke wijk Aetsveld. Op loopafstand bevindt zich een supermarkt, cafetaria, sporthal, twee basisscholen en een kinderdagverblijf. Ook beschikt de wijk over meerdere speeltuintjes, verder is er voldoende gratis parkeergelegenheid op het naastgelegen parkeerterreintje met ook twee laadpalen voor elektrische voertuigen. Met de fiets ben je binnen 4 minuten in het centrum van Weesp. In het historische centrum tref je diverse speciaalzaken aan zoals bakkers, een slager, een groentespecialist, leuke winkeltjes en een goede ijssalon, verder zijn er boordevol verschillende restaurants, terrassen en cafés.
Het station ligt eveneens op fietsafstand met frequente verbindingen (4x per uur) naar onder andere Amsterdam (16 minuten) en Schiphol (25 minuten). Ook de uitvalswegen (A1, A9 en A10) zijn snel en makkelijk te bereiken.
Indeling
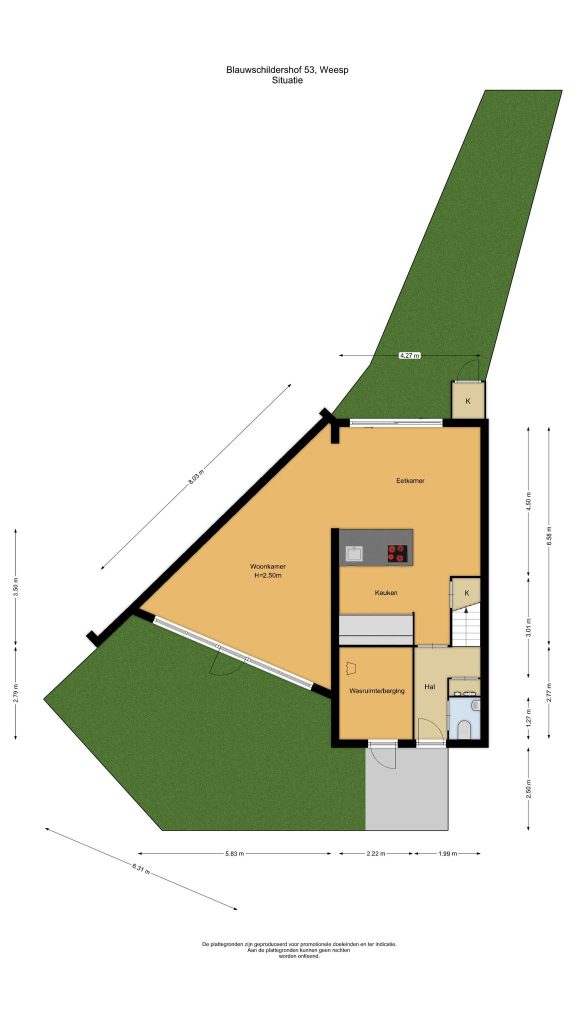
Begane grond:
Entree, hal, meterkast (2021) en vrijhangend toilet met fontein. Gezellige woonkeuken uit 2018 met eetbar en praktische bergkast. De keuken is voorzien van alle denkbare apparatuur zoals een Bora inductiekookplaat met geïntegreerde afzuigsysteem, vaatwasser, koel-/vriescombinatie, Quooker, combi/oven en magnetron. Via de schuifpui in de woonkeuken heb je toegang tot de achtertuin, gelegen op het zuidoosten.
De lichte woonkamer is heerlijk ruim en heeft toegang geeft tot de tuin (noordwesten) aan de voorzijde van het huis.
Op de begane grond bevindt zich de berging, voorzien van aansluitingen voor wasmachine en droger.
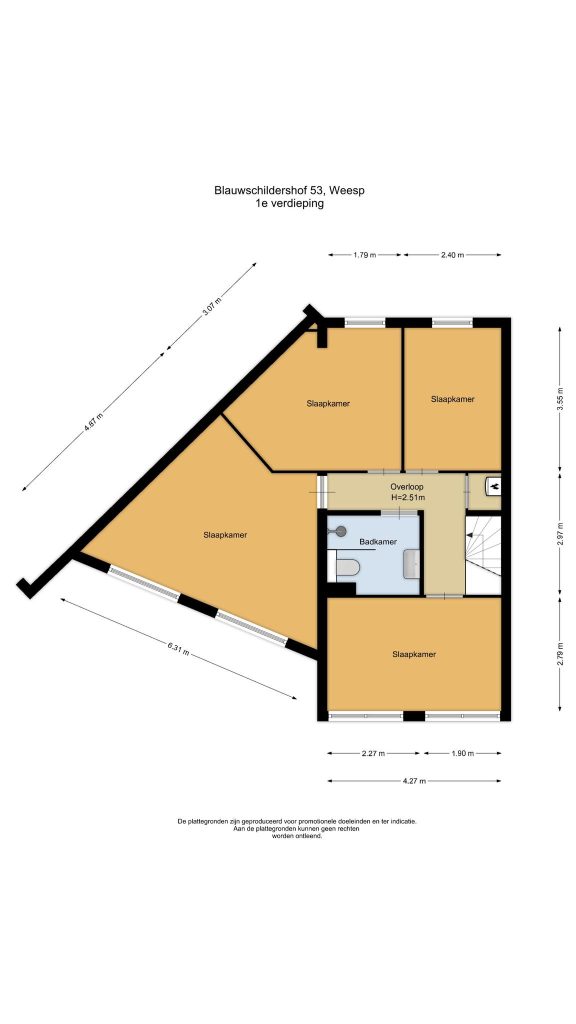
Eerste verdieping:
Overloop met een separate bergkast voor de Cv-ketel, aan de voorzijde de eerste ruime slaapkamer, aan de achterzijde bevinden zich twee slaapkamers en aan het eind van de overloop de riante vierde masterbedroom, waar je eventueel nog twee kamers van kan maken. De moderne badkamer (2021) is voorzien van een inloopdouche, tweede toilet, designradiator en wastafel. De ramen in de slaapkamers (op een raam na) zijn voorzien van horren.
In het kort:
o Verrassende eengezinswoning (130 m²) met berging en 2 tuinen
o Ruim perceel: 150 m² (eigen grond)
o Vaillant Eco Tec plus uit 2021 (eigendom)
o Geheel voorzien van dubbel en/of HR++ glas
o Nieuwe schuifpui uit 2021
o Energielabel A
o Vier slaapkamers (vijf mogelijk)
0 Achtertuin voorzien van handige bergkast
o Fenomenaal uitzicht over de weilanden
o Geen parkeerstress dankzij ruime openbare parkeerplaatsen
Kenmerken
- Woonoppervlakte 130 m2
- Perceeloppervlakte 150 m2
- Slaapkamers 4 kamers
- Bouwjaar 1982
 
				 
     
                       
                       
                       
                       
                       
                       
                       
                       
                       
                       
                       
                       
                       
                       
                       
                       
                       
                       
                       
                       
                       
                       
                       
                       
                       
                       
                       
                       
                       
                       
                       
                       
                       
                       
                       
                       
                       
                       
                       
                       
                       
                       
                       
                       
                       
                       
                       
							 
							 
							 
							 
							 
							 
							 
							 
							 
							 
							 
							 
							 
							 
							 
							 
							 
							 
							 
							 
							 
							 
							 
							 
							 
							 
							 
							 
							 
							 
							 
							 
							 
							 
							 
							 
							 
							 
							 
							 
							 
							 
							 
							 
							 
							