Bekijk onze funda logo reviews

Omschrijving

Gelegen in de kindvriendelijke en leuke wijk Leeuwenveld II staat deze moderne, strak afgewerkte en gasloze eengezinswoning met onder andere een lichte woonkamer met openslaande deuren naar de tuin, vier slaapkamers, modern sanitair (2020) een dakterras, grote berging in de tuin met aangebouwde overkapping en ook nog eens een parkeerplaats op eigen terrein.

De woning heeft een goede en vrije ligging binnen de wijk. Aan de voorzijde kijk je schuin weg over een gracht en aan de overzijde van de woning bevindt zich een klein speelpleintje. Aan de achterzijde is de woning gelegen aan een rustig, autoluw eigen (VvE) straatje. De wijk Leeuwenveld II biedt een unieke mix van moderne stadswoningen en appartementen met gevarieerde gevels en dakvormen. En dat alles op loopafstand van het NS-station, net als het knusse, historische centrum van Weesp met al haar voorzieningen.
Bovendien zijn er goede uitvalswegen naar de A1, A6 en A9 richting Amsterdam, Almere en Hilversum. Met de auto ben je binnen 15 minuten in het centrum van Amsterdam.

De wijk Leeuwenveld II grenst aan het toekomstige Weespersluispark, vlakbij nieuwe voorzieningen in Weespersluis, zoals een winkelcentrum, haven en stadsstrand. Kinderen kunnen fietsend naar de nieuwe basisscholen in Weespersluis, naar een basisschool in het centrum of naar het goed aangeschreven Vechtstede College. Weesp kent diverse speciaalzaken en winkels, leuke restaurants en cafés, waterrecreatie, een OBA-vestiging en er is ook een theater met filmhuis.

Deze woning biedt een perfecte combinatie van ruimte, comfort en een centrale ligging in een levendige jonge stadswijk. Maak snel een afspraak voor een bezichtiging en ontdek je nieuwe huis!

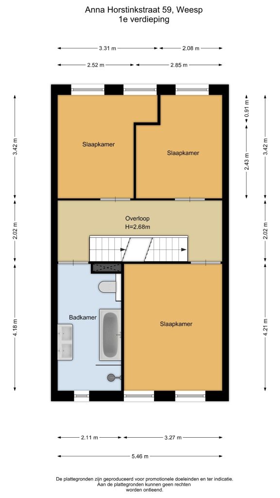
Indeling

Begane grond
Entree met hal, garderobe, meterkast en een toilet met fontein. De trap is in 2021 opnieuw bekleed. Vanuit de hal kom je in de lichte woonkamer met houten vloer en openslaande deuren naar de tuin. Aansluitend vind je de moderne keuken, afgewerkt met een gietvloer en voorzien van alle benodigde inbouwapparatuur: een vaatwasser (2025), inductiekookplaat, afzuigkap, koel-/vriescombinatie, combimagnetron en voldoende kastruimte.

Eerste verdieping
Royale overloop, master bedroom aan de voorzijde met grote raampartijen met twee Franse balkons, twee slaapkamers aan de achterzijde. De riante en strakke badkamer (uit 2020) bevindt zich aan de voorzijde en is voorzien van daglicht. Er is een inloopdouche met hand/regendouche, een semi-vrijstaand ligbad, tweede toilet en een dubbel wastafelmeubel.

Tweede verdieping
Vanaf de overloop de opgang naar de tweede verdieping voorzien van gietvloer. De ruime voorzolder met vaste kasten is perfect als studie/-werkruimte en geeft ook toegang tot het heerlijke dakterras van 13 m².
Aan de voorzijde bevindt zich de vierde slaapkamer met twee dakkapellen met Franse balkons.
Verder bevindt zich op deze verdieping nog de ruime was-/bergruimte voor het opbergen van spullen. De opstelling van de warmtepomp, mechanische ventilatie (2024), wasmachine en droger.

Tuin, parkeren, berging en dakterras:
De bijna 9 meter diepe achtertuin is gelegen op het noordwesten en grenst, middels een af te sluiten hek, aan de eigen parkeerplaats en deze dient gelijk als achterom. De parkeerplaats heeft een oplaadpunt voor elektrisch opladen. Er is een zeer ruime berging (voorheen garage) van 13 m² voorzien van elektra en een grote elektrische deur. Aan de berging is een mooie overkapping met spotjes gemaakt. Ideaal om lekker te zitten met familie en vrienden.

Op de tweede verdieping bevindt zich het dakterras van 13 m². Hier kan je met name ’s avonds heerlijk zitten en genieten van de ondergaande zon. Er is eventueel een mogelijkheid om het dakterras bij de woning te trekken.

In het kort:
o Heerlijk ruime eengezinswoning van 142 m² in Leeuwenveld II;
o Op steenworp afstand van het centrum van Weesp en het NS station;
o Parkeerplaats op eigen terrein;
o Grote berging (13 m²) met aangebouwde overkapping;
o Tuin met achterom, gelegen op het noordwesten;
o Dakterras van 13 m²;
o Bouwjaar 2010;
o Nagenoeg alle ramen zijn voorzien van mooie plissé gordijnen
o Geheel voorzien van vloerverwarming;
o Hardhouten draai-/kiepramen met HR++ glas;
o 11 Zonnepanelen
o Warmtepomp die zowel kan verwarmen als koelen;
o Volledig geïsoleerd en daarom energielabel A+;
o Servicekosten à € 42,- per maand voor opstal-/brandverzekering en onderhoud achtergelegen straat, verlichting, hek en beplanting;

Kenmerken

  • Woonoppervlakte 142 m2
  • Slaapkamers 4 kamers
  • Bouwjaar 2010
Zoekopdracht nieuw aanbod

Als eerste op de hoogte zijn van ons aanbod? Schrijf je nu in

Vragen?

Kom in contact

Heb je vragen over ons aanbod of onze diensten? Neem dan telefonisch of per e-mail contact op met ons team. Of vul het contactformulier in, en dan nemen wij binnen 24 uur contact met jou op.

Op werkdagen geopend van 9.00 - 17.30

Zaterdag van 10.00 - 13.30

En natuurlijk op afspraak buiten kantoortijden

"*" geeft vereiste velden aan

Dit veld is bedoeld voor validatiedoeleinden en moet niet worden gewijzigd.