Bekijk onze funda logo reviews

Omschrijving

Een karakteristiek huis in het centrum, een huis dat modern is, een huis dat duurzaam is, een huis dat ruimte en licht heeft.
Deze geweldige, uitgebouwde stadwoning van 86 m² heeft het allemaal.

In 2020 is het gehele huis onder handen genomen en het resultaat is fantastisch. Een greep uit de werkzaamheden:
– Uitbouw aan de achterzijde over de volle breedte van de woning met groot dakraam en inbouwspots
– Geheel geïsoleerd, vloerverwarming op de begane grond en 5 zonnepanelen
– Volledig strakke afwerking van wanden, plafonds en vloeren
– Nieuwe elektra en groepenkast
– Nieuwe, ruime keuken voorzien alle denkbare inbouwapparatuur
– Modern sanitair en tweede toilet op de eerste verdieping

De ligging van de deze stadswoning is ook ideaal, alle voorzieningen liggen op loopafstand! Om te beginnen bij het station, je loopt er in 7 minuten naartoe. Het station van Weesp heeft uitstekende verbindingen (Amsterdam CS 16 minuten, Schiphol 23 minuten). De bakker, kaasboer, maar ook supermarkten, horeca, winkels en boetiekjes, het ligt allemaal op loopafstand.

Rivier de Vecht, sportverenigingen en basis- en middelbare scholen zijn eveneens dichtbij.
Ook de uitvalswegen (A1, A9 en A10) richting Amsterdam, Utrecht en Amersfoort zijn snel en goed te bereiken. In de straat kan je goed parkeren via een direct beschikbare parkeervergunning.

Maak snel een afspraak, dit soort leuke stadswoningen die zo goed afgewerkt zijn, zijn schaars!

Indeling

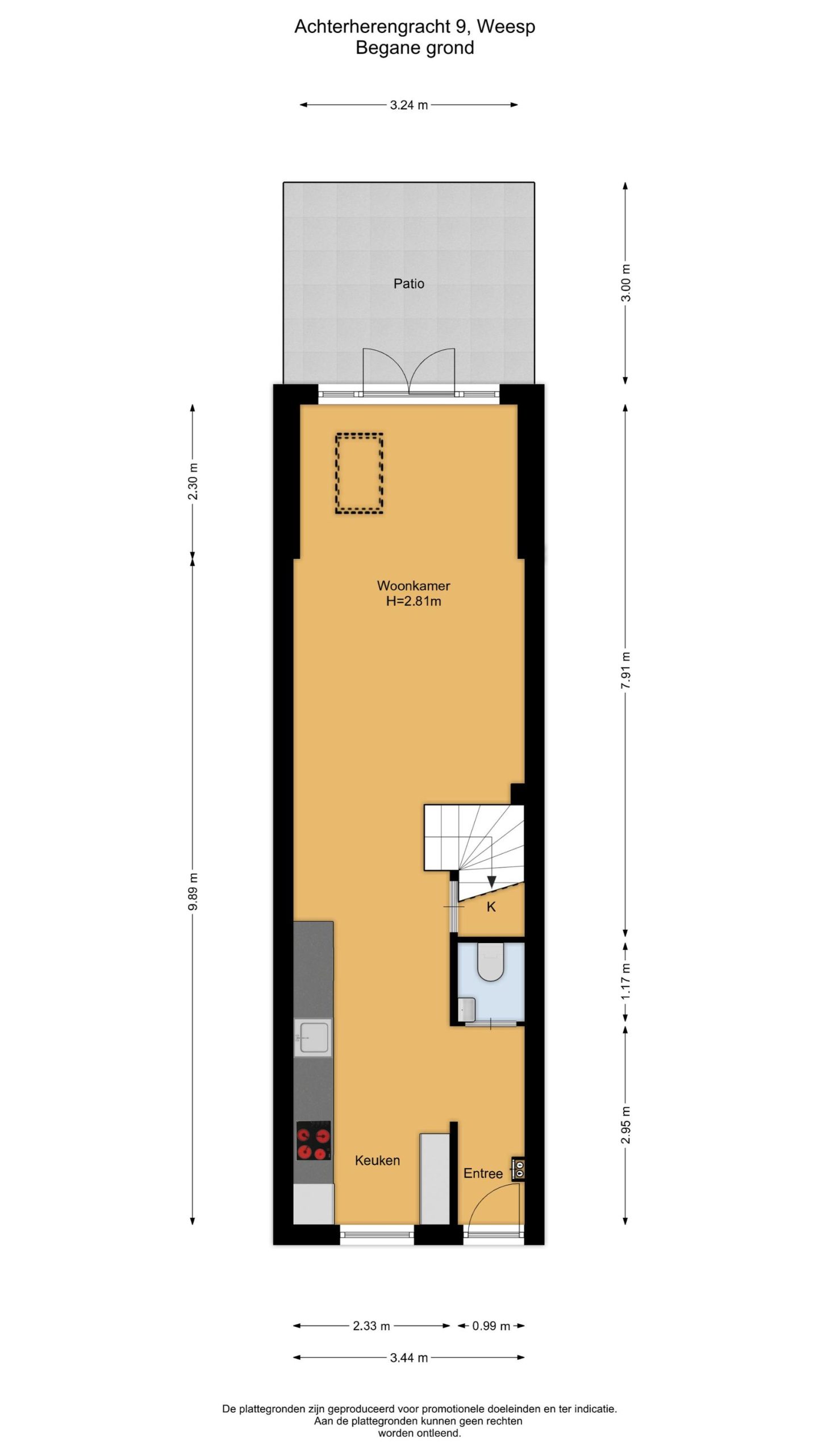
Begane grond:
Entree met de meterkast, modern toilet met fontein. Aan de voorzijde van de woning de moderne in keuken in een prachtige blauwe en witte teint met een keramiek werkblad. De keuken is voorzien van een vaatwasser, oven, inductie kookplaat, afzuigkap, magnetron en losse koelkast (gaat mee). De woon-/eetkamer heeft een mooi balkenplafond (2.81 m. hoog) met inbouwspots, is aan de achterzijde uitgebouwd en in de uitbouw bevindt zich een lichtkoepel voor extra daglichttoetreding. Via de openslaande deuren bereik je de heerlijk patio, gelegen op het zuiden.

Eerste verdieping:
Via de trap in de woonkamer kom je op de overloop die toegang geeft aan de slaapkamer aan de voorzijde en de tweede slaapkamer aan de achterzijde beide kamers zijn woningbreed en zijn voorzien van een mooie houten vloer. De moderne badkamer is voorzien van een inloopdouche, wastafelmeubel, tweede toilet en designradiator. De wasmachine en droger opstelling bevindt zich op de overloop, nagenoeg geheel opgesteld achter de schuifdeur naar de tweede verdieping.

Tweede verdieping:
Middels de praktische schuifdeur de opgang naar de tweede verdieping. Een mooie ruimte met dakramen en veel opbergruimte. Een ideale logeer-, werk en/of slaapkamer. Onder het schuine dak bevindt zich veel opbergruimte en hier bevindt zich ook de CV ketel en de omvormer voor de zonnepanelen.

In het kort:
o Charmante, uitgebouwde stadswoning met drie slaapkamers
o Gebruiksoppervlakte van 86 m²
o Perceeloppervlakte 57 m², eigen grond
o Bouwjaar 1902
o Geheel voorzien van isolatie: voorzetwanden met isolatie, vloer- en dakisolatie
o Dakpannen aan voorzijde vervangen, panlatten in geheel vervangen in 2019/2020
o Geheel voorzien van dubbel glas en/of HR++
o Vloerverwarming op de begane grond
o Meterkast: 11 groepen, 1 kook groep, 3 aardlekschakelaars
o Combi CV-ketel van Intergas uit 2020
o 5 zonnepanelen
o Energielabel A
o Er is geen achterom en buitenberging
o Parkeren middels vergunning, € 25,- per 6 maanden

Kenmerken

  • Woonoppervlakte 86 m2
  • Perceeloppervlakte 57 m2
  • Slaapkamers 3 kamers
  • Bouwjaar 1902
Zoekopdracht nieuw aanbod

Als eerste op de hoogte zijn van ons aanbod? Schrijf je nu in

Vragen?

Kom in contact

Heb je vragen over ons aanbod of onze diensten? Neem dan telefonisch of per e-mail contact op met ons team. Of vul het contactformulier in, en dan nemen wij binnen 24 uur contact met jou op.

Op werkdagen geopend van 9.00 - 17.30

Zaterdag van 10.00 - 13.30

En natuurlijk op afspraak buiten kantoortijden

"*" geeft vereiste velden aan

Dit veld is bedoeld voor validatiedoeleinden en moet niet worden gewijzigd.