Achterherengracht 1
€ 350.000 k.k.Omschrijving
Klein van formaat, groots in karakter
Aan één van de meest sfeervolle straatjes van de historische binnenstad van Weesp ligt deze charmante stadswoning aan de Achterherengracht. Een plek waar de stadsgeschiedenis voelbaar is en waar je tegelijkertijd woont op loopafstand van alles wat Weesp zo aantrekkelijk maakt: de grachten, de Vecht, de leuke winkels, de horeca en het NS-station.
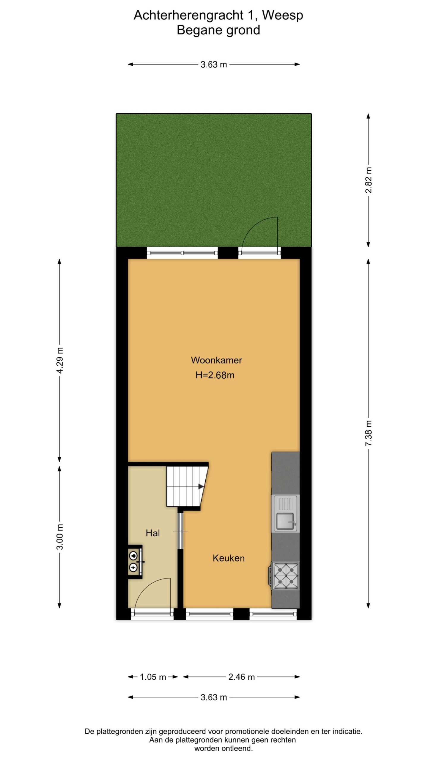
Achter de karakteristieke gevel schuilt een verrassend slim ingedeelde woning, verdeeld over twee woonlagen. De begane grond bestaat uit een lichte woonkamer met open keuken. Dankzij de prettige plafondhoogte en de rechte maatvoering voelt de ruimte groter aan dan je op basis van de vierkante meters zou verwachten. Een fijne plek om te wonen, te werken en gasten te ontvangen. Vanuit de woonkamer is er een deur naar de zonnige patio, gelegen op het zuiden, waar je volledig privé kan zitten.
Op de verdieping bevindt zich de slaapkamer en de badkamer. Ook hier is de ruimte efficiënt benut. De woning is compact, maar logisch en doordacht opgezet – precies wat je zoekt als je midden in de stad wil wonen.
Daarmee is dit een ideaal huis voor een één- of tweepersoonshuishouden, een starter, pied-à-terre of iemand die bewust kleiner wil wonen op een A-locatie.
De Achterherengracht staat bekend om haar rustige karakter, terwijl het bruisende centrum letterlijk om de hoek ligt. Parkeren is mogelijk met een vergunning en het NS-station bevindt zich op korte loopafstand, met snelle verbindingen richting Amsterdam en Schiphol.
Kortom: een karaktervolle stadswoning op een unieke plek, voor wie het echte Weesp wil ervaren – compact, sfeervol en midden in het leven.
In het kort:
o Gelegen aan de sfeervolle Achterherengracht in het historische centrum van Weesp
o Compacte, charmante stadswoning met slimme indeling
o Woonoppervlak ca. 44m² verdeeld over twee woonlagen
o Patio op het zuiden
o Prettige plafondhoogte en verrassend ruimtelijk gevoel
o Open keuken en lichte woonkamer
o Slaapkamer en badkamer op de verdieping
o Energielabel G
o Gas en Electra €98,85 per maand voor 2 persoons huishouden jaar 2025.
o Parkeren middels parkeervergunning, kosten €56,52 per jaar, geen wachtlijst.
o Rustige straat, terwijl winkels, horeca en de Vecht om de hoek liggen
o NS-station op loopafstand (snelle verbinding met Amsterdam)
o Ideaal voor starter, één- of tweepersoonshuishouden of pied-à-terre
Kenmerken
- Woonoppervlakte 44 m2
- Perceeloppervlakte 45 m2
- Slaapkamers 1 kamer