Achterherengracht 5
€ 425.000 k.k.Omschrijving
In het hart van Weesp ligt deze charmante en gerenoveerde stadswoning uit 1796.
De woning is uitgebouwd, voorzien van brede dakkapellen en volledig gemoderniseerd. Hierdoor is een sfeervolle en praktische woning ontstaan met een woonoppervlak van circa 57 m², perfect geschikt voor een één- of tweepersoonshuishouden.
Dankzij de uitbouw is de begane grond verrassend ruim en efficiënt ingedeeld. Op de verdieping zorgen de brede dakkapellen voor een lichte en open sfeer, met behoud van privacy.
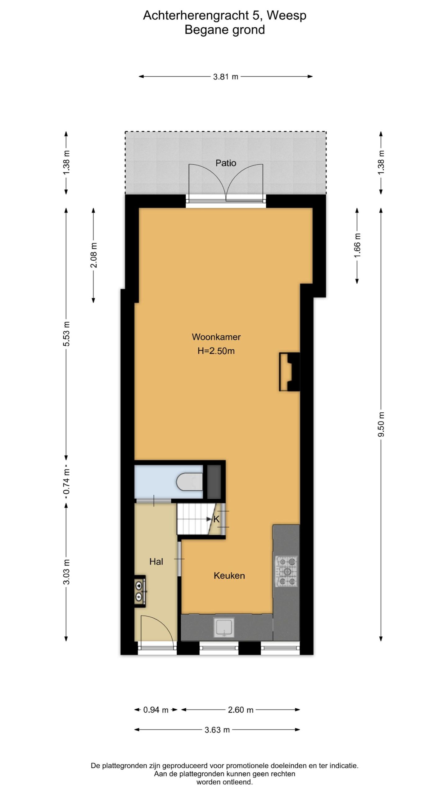
De zonnige patio op het zuiden vormt een heerlijke plek om de dag te beginnen of juist af te sluiten. Deze buitenruimte biedt volop privacy.
De ligging is ideaal: op korte afstand van winkels, gezellige horeca, het theater, de grachten en rivier De Vecht. Ook het NS-station ligt op slechts 450 meter afstand, met snelle verbindingen richting onder andere Amsterdam (circa 16 minuten naar Amsterdam-Centrum en Amsterdam-Zuid) en Schiphol. Parkeren kan eenvoudig via direct verkrijgbare parkeervergunningen.
Kortom, een fijne en rustige woonplek midden in het levendige Weesp, met alle voorzieningen binnen handbereik.
Maak snel een afspraak voor een bezichtiging van deze karakteristieke woning!
Indeling:
Begane grond:
Entree, hal met meterkast, vernieuwd toilet (2025, vrijhangend) en trapopgang (prachtig bekleed met loper). De uitgebouwde woon-/eetkamer beschikt over openslaande deuren en een sfeervolle houtkachel met Hollandse witjes betegeld erachter. De ruimte is afgewerkt met glad stucwerk en een eikenhouten vloer. Aan de voorzijde bevindt zich de moderne keuken, voorzien van een breed 6-pitsgasfornuis met oven, afzuigkap en koelkast met vriesgedeelte.
Eerste verdieping:
Open verdieping met aan de achterzijde de slaapkamer, voorzien van een kastenwand en vloerverwarming (2025). Aan de voorzijde bevindt zich de ruime, open badkamer met inloopdouche, wastafelmeubel en aansluitingen voor wasmachine en droger (beide blijven achter).
In het kort:
o Bouwjaar 1796, uitbouw/dakkapellen en renovatie in 2015
o Gelegen binnen het beschermde stadsgezicht van Weesp
o Geen monument
o Perceeloppervlakte 47 m², eigen grond
o Moderne groepenkast met 8 groepen en aardlekschakelaar
o Momenteel geen vaatwasser, maar aansluitingen aanwezig
o Remeha Tzerra HR-combiketel (2015, eigendom)
o Voorzijde en eerste verdieping achter voorzien van enkel glas met voorzetramen; overige ramen met dubbel glas
o Dakisolatie en voorzetwanden, energielabel E
o Glad stucwerk op wanden en plafonds
o Inbouwspots op beide verdiepingen
o Voorgevel gereinigd en gevoegd in 2012
o Parkeervergunning direct verkrijgbaar via gemeente (€ 58,- per jaar)
o Oplevering in overleg, kan snel
Kenmerken
- Woonoppervlakte 57 m2
- Perceeloppervlakte 47 m2
- Slaapkamers 1 kamer
- Bouwjaar 1796