Bekijk onze funda logo reviews

Omschrijving

Licht, ruimte en karakter in het historische hart van Weesp

Wonen op een unieke hoek locatie in het sfeervolle centrum van Weesp? Dit charmante en verrassend ruime appartement (88 m²) op de begane grond biedt alles wat je zoekt: veel licht, een nette afwerking, een eigen entree én de mogelijkheid voor een tweede slaapkamer.

Dankzij de hoekligging en de vele ramen aan beide straatzijden geniet je hier van een prachtige lichtinval en een open gevoel, gecombineerd met een leuke afwerking en een praktische indeling, waarbij de mogelijkheid bestaat om van dit 2-kamer appartement een 3-kamer appartement te maken.

Ligging:
Je woont hier midden in het historische centrum van Weesp, met alle voorzieningen op loopafstand: gezellige cafés, speciaalzaken, supermarkten, scholen en sportclubs. Ook het NS-station ligt op enkele minuten wandelen. En met de trein sta je in 17 minuten op Amsterdam Centraal.

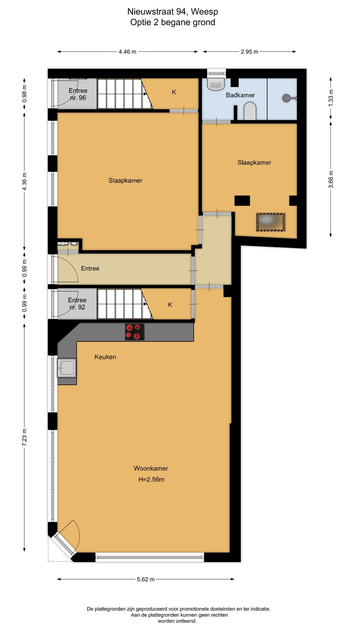
Indeling:
Via de eigen voordeur stap je binnen in een ruime hal met toegang tot de keuken en de woonkamer, de royale woonkamer met veel ramen vormt het hart van het huis. Vanuit de woonkamer loop je de keuken, die voorzien is van inbouwapparatuur, een dakraam in de keuken zorgt voor veel daglicht. Vanuit hier is ook de toegang naar de eenvoudige badkamer met douche, wastafel en toilet. Ook de slaapkamer, gelegen aan de voorzijde van het appartement is vanuit de keuken bereikbaar.

Andere indeling?
Dit appartement is eenvoudig te verbouwen naar een 3-kamer appartement. Er zijn 2 eventuele indelingsalternatieven uitgewerkt en de plattegronden zijn te zien op Funda en onze eigen site.

In het kort:
– Woonoppervlakte: 88 m² (NEN 2580 gemeten)
– Begane grond appartement
– Hoekligging met veel ramen en daglicht
– Mogelijkheid voor het realiseren van 2 slaapkamers
– Goed onderhouden
– De VvE heeft een nieuw geïsoleerd dak laten plaatsen in 2025
– Servicekosten € 180,- per maand
– Gelegen op eigen grond (geen erfpacht)
– Energielabel C
– Op korte loopafstand van de rivier de Vecht en natuurgebied “de Vest”
– Een parkeervergunning voor bewoners kost € 27,22 per 6 maanden (op dit moment geen wachtlijst)

Kenmerken

  • Woonoppervlakte 88 m2
  • Slaapkamers 1 kamer
  • Bouwjaar 1935
Zoekopdracht nieuw aanbod

Als eerste op de hoogte zijn van ons aanbod? Schrijf je nu in

Vragen?

Kom in contact

Heb je vragen over ons aanbod of onze diensten? Neem dan telefonisch of per e-mail contact op met ons team. Of vul het contactformulier in, en dan nemen wij binnen 24 uur contact met jou op.

Op werkdagen geopend van 9.00 - 17.30

Zaterdag van 10.00 - 13.30

En natuurlijk op afspraak buiten kantoortijden

"*" geeft vereiste velden aan

Dit veld is bedoeld voor validatiedoeleinden en moet niet worden gewijzigd.