Bekijk onze funda logo reviews

Omschrijving

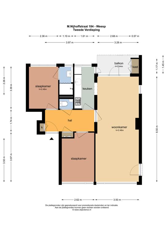
Wat een fijn driekamer hoekappartement van 67 m², gelegen op de tweede woonlaag van een verzorgd en kleinschalig appartementengebouw.

Het appartement heeft vrij uitzicht over een plantsoen met vijverpartij en ligt gunstig en rustig in de Stationsbuurt op loopafstand van het NS station van Weesp met frequente treinverbindingen naar o.a. A’dam CS, de Zuidas, Hilversum en Almere. Voor de deur kun je vrij parkeren en alle centrumvoorzieningen van Weesp zijn op korte (loop)afstand goed bereikbaar.

Het appartement is onder andere voorzien van dubbele beglazing, een eigen c.v., kunststof kozijnen met handige draai-/kiepramen, een moderne half open keuken, een balkon en een ruime (fietsen)berging in de onderbouw.

Indeling: entree, royale hal met meterkast, proviandkast, toilet, twee goede slaapkamers waarvan een toegang geeft tot de badkamer met wastafelmeubel en douche, lichte doorzon woon-/eetkamer met laminaatvloer en hoge plinten, extra Frans balkon, doorloop naar de half open keuken met barretje die o.a. voorzien is van (inbouw)apparatuur zoals een gasfornuis, afzuigkap, koelkast/vriezer en een wasmachine. Via de keuken ook toegang tot het balkon.

In het kort:

o Woonoppervlakte: 67 m²
o Energielabel C
o Twee slaapkamers
o Kunststofkozijnen met dubbele beglazing
o Berging in de onderbouw
o Slechts 16 treinminuten naar A’dam CS of Zuidas
o Servicekosten: EUR 174,- / maand

Kenmerken

  • Woonoppervlakte 67 m2
  • Slaapkamers 2 kamers
  • Bouwjaar 1960
Zoekopdracht nieuw aanbod

Als eerste op de hoogte zijn van ons aanbod? Schrijf je nu in

Vragen?

Kom in contact

Heb je vragen over ons aanbod of onze diensten? Neem dan telefonisch of per e-mail contact op met ons team. Of vul het contactformulier in, en dan nemen wij binnen 24 uur contact met jou op.

Op werkdagen geopend van 9.00 - 17.30

Zaterdag van 10.00 - 13.30

En natuurlijk op afspraak buiten kantoortijden

"*" geeft vereiste velden aan

Dit veld is bedoeld voor validatiedoeleinden en moet niet worden gewijzigd.