Bekijk onze funda logo reviews

Omschrijving

Op zoek naar een woning met veel (separate) leefruimte, behoefte aan veel lichtinval en ben je op zoek naar iets aparts?

Deze geweldige hoekwoning van maar liefst 218 m² heeft het allemaal. Het huis heeft drie verdiepingen en een speelse indeling, die ook nog eens naar eigen wens in te delen is. Eventueel is er ook voor ruimte voor een au pair, ouder (studerend) kind of extra werkplek. Iedere verdieping heeft veel lichtinval en de buitenruimtes zijn ook heel prettig: van balkon tot tuin. En zin in meer reuring? Ga dan gezellig zitten in de prachtig aangelegde binnentuin van de VvE.

De woning ligt aan het Dichtershof en is onderdeel van het project “Parlando”, opgeleverd in 2005. Het huis is gelegen op een steenworp afstand van het station en op loopafstand van het centrum van Weesp. Uiteraard ontbreken een eigen parkeerplaats in de parkeergarage en een ruime berging niet en ook is er volop buitenruimte.
En dat alles op slechts 1 minuut loopafstand van het NS station van Weesp met frequente treinverbindingen binnen de Randstad. Zo ben je bijvoorbeeld met 17 treinminuten op Amsterdam CS en in 23 minuten op Schiphol. Als je na het station nog een paar minuutjes doorwandelt, kom je in het historische centrum van Weesp met winkels, boetiekjes, terrassen en tal van gezellige horecavoorzieningen, scholen en vele sportvoorzieningen. En je fietst zó de natuur in: langs De Vecht met de beeldbepalende molens, naar het plassengebied van Nederhorst den Berg, Ankeveen en het Naardermeer, richting ‘t Gein of het Goois Natuurreservaat met bos en hei.

Maak snel een afspraak en kom deze geweldige hoekwoning bekijken. Je zal versteld staan van de ruimte en de mogelijkheden en dat op een steenworp afstand van hartje Amsterdam.

Indeling

Begane grond:
Entree van de woning via de voortuin, met de meterkast en de op maat gemaakte garderobehoek, grote woonkeuken met openslaande deuren naar de tuin. De keuken (2021) is voorzien van de volgende inbouwapparatuur: inductiekookplaat met geïntegreerde afzuigkap, kokend waterkraan (Quooker), vaatwasser, oven, koelkast en het werkblad is van composiet. Verder is er in de woonkeuken een mooi meubel gemaakt met veel opbergruimte. Vanuit de keuken via een tussenhal kom je bij het toilet met fontein en bereik je ook de grote bijkeuken met de opstelling van de CV ketel, mechanische ventilatie box en de wasmachine/droger aansluiting. Vanuit de tussenhal is ook de royale inpandige berging toegankelijk en de toegang naar de parkeergarage.

Via de woonkeuken is via 2 openslaande deuren met glas, de slaap/studeer/werk kamer te bereiken. Deze ruimte kan geheel naar eigen wens worden gebruikt. Ideaal is ook de eerste badkamer die zich hier bevindt met douche en wastafel. En via een aparte hal bereik je weer de bijkeuken en het toilet van de woning.
Deze slaap/studeer/werk kamer heeft 2 paar openslaande deuren naar de tuin. In de tuin zit je heerlijk vrij door de groene haag rondom.

Eerste verdieping:
Vanuit de woonkeuken de opgang naar de eerste verdieping. Deze woonverdieping van bijna 82 m² heeft veel lichtinval: er zijn maar liefst 8 paar openslaande deuren. Twee paar openslaande deuren geven toegang tot het balkon van 8 m². Het glazen balkon met houten vlonders is gelegen op het noordwesten en dat betekent met name de middag- en avondzon, maar ook is de tuin en de gezamenlijke binnentuin van de VvE vanuit deze woonverdieping toegankelijk.

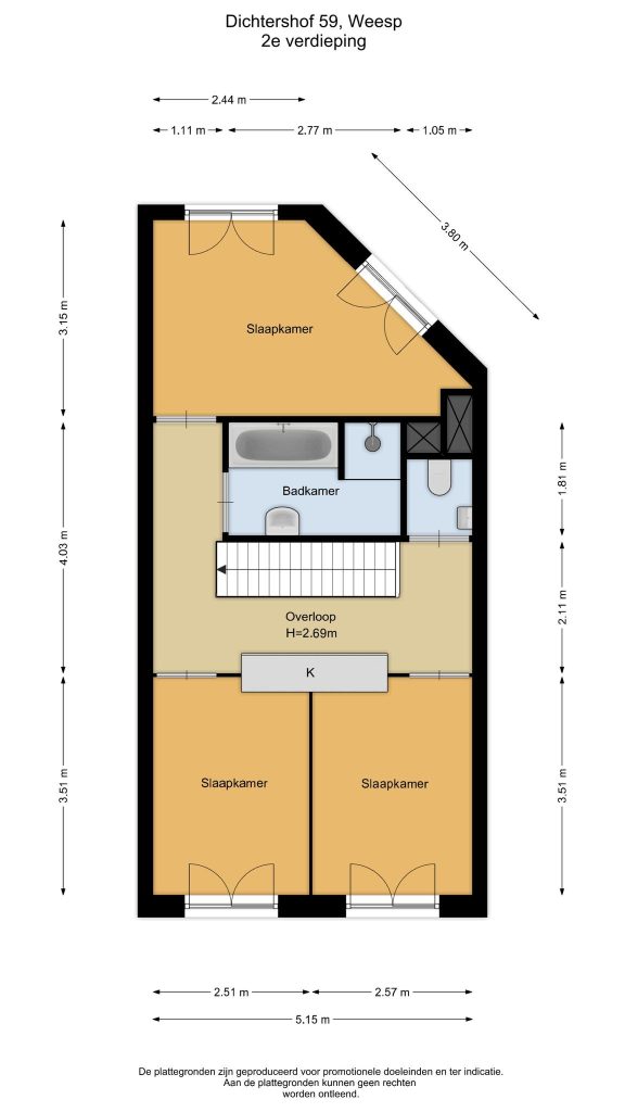
Tweede verdieping:
Ruime overloop met vaste kasten en een separaat toilet met fontein. Twee slaapkamers aan de voorzijde en een ruime derde slaapkamer aan de achterzijde. Alle slaapkamers zijn voorzien van openslaande deuren (Frans balkons). Vanaf de overloop is de tweede badkamer met ligbad, douche en wastafel toegankelijk.

Garage / berging:
Op de begane grond bevindt zich de parkeergarage met eigen parkeerplaats voorzien van laadpunt voor een elektrische auto. De parkeergarage is vanuit de woning bereikbaar. De berging (ca. 13 m²) bevindt zich eveneens op de begane grond en is ook vanuit de woning bereikbaar.

Ligplaats:
Op 5 minuten fietsen van de woning is ook een ligplaats/steiger te koop. Deze ligplaats/steiger aan het Aquamarin is ca. 2,8 meter breed en biedt ruimte aan een boot met een lengte van maximaal 9 meter. De steiger is voorzien van water en elektra, is veilig door middel van het afgesloten hek en de omliggende bebouwing en de boot kan het gehele jaar blijven liggen.

In het kort:
o Zeer centraal gelegen hoekwoning van 218 m²
o Meerdere buitenruimtes: balkon (8 m²), eigen tuin op het westen (circa 30 m²) en toegang tot binnentuin
o Bouwjaar 2005
o Zeer verzorgd appartementengebouw met afgesloten parkeergarage, inpandige berging en prachtige binnentuin
o Vaillant CV ketel uit 2023 (eigendom)
o Vloerverwarming op begane grond
o Moderne meterkast met voldoende groepen en laadpaal
o Energielabel A
o Gezonde Vereniging van Eigenaren, servicekosten € 268,46 per maand
o Ligplaats separaat te koop

Kenmerken

  • Woonoppervlakte 218 m2
  • Slaapkamers 4 kamers
  • Bouwjaar 2005
Zoekopdracht nieuw aanbod

Als eerste op de hoogte zijn van ons aanbod? Schrijf je nu in

Vragen?

Kom in contact

Heb je vragen over ons aanbod of onze diensten? Neem dan telefonisch of per e-mail contact op met ons team. Of vul het contactformulier in, en dan nemen wij binnen 24 uur contact met jou op.

Op werkdagen geopend van 9.00 - 17.30

Zaterdag van 10.00 - 13.30

En natuurlijk op afspraak buiten kantoortijden

"*" geeft vereiste velden aan

Dit veld is bedoeld voor validatiedoeleinden en moet niet worden gewijzigd.